Helping you
De Wittenkade 87 H


Omschrijving
Ontdek deze charmante woning op de begane grond met een vrolijke twist, gelegen in het bruisende hart van de geliefde Staatsliedenbuurt. Met een royaal woonoppervlak van circa 85 m², hoge plafonds van ongeveer 3,50 meter en een heerlijke patio, biedt dit huis een levendige leefruimte die uitnodigt tot ontspanning en vertier.
Stap binnen in de lichte doorzonwoonkamer met een gezellige open keuken, waar sociale bijeenkomsten tot leven komen. Een comfortabele slaapkamer, een praktische logeer-/werkkamer en een verfrissende badkamer maken dit huis zowel functioneel als stijlvol. In de fijne patio aan de achterzijde kun je genieten van zonnige dagen en zwoele zomeravonden.
De locatie is simpelweg perfect. Op slechts enkele minuten loopafstand vind je onder andere Bakkerij Louf, supermarkten als Albert Heijn en Dirk, een ambachtelijke wijnwinkel, de lokale slager, een stomerij en twee woonwinkels. Om de hoek ligt het levendige Westergasterrein, met een overvloed aan trendy restaurants, gezellige cafés, een bioscoop, tennisbanen en kunstgaleries. Binnen een mum van tijd bevind je je in het bruisende centrum, met de betoverende Jordaan, de iconische Westerkerk en een schat aan boetieks, eetgelegenheden en markten – allemaal op slechts 10 minuten afstand. Ook het Museumplein en het idyllische Vondelpark liggen binnen handbereik.
De tram- en bushaltes zijn op loopafstand te vinden, terwijl belangrijke uitvalswegen zoals de A10 (S103 en A105) eenvoudig bereikbaar zijn.
Kortom, deze woning biedt niet alleen een fantastische leefruimte, maar ook een ongeëvenaarde levensstijl in een van de meest gewilde buurten van de stad.
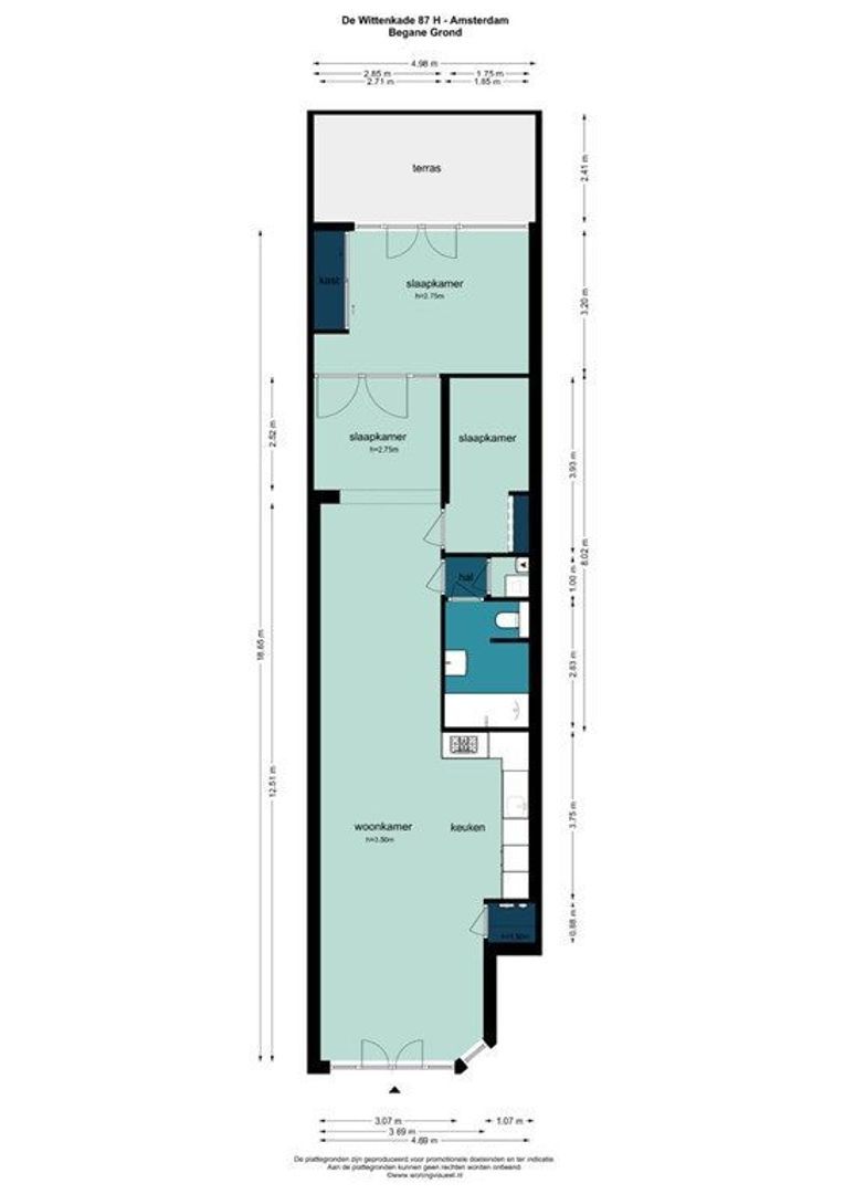
Indeling:
Welkom in deze charmante woning, waar je via een eigen entree direct binnenkomt in de woonkamer met open keuken. De complete keuken, uitgerust met een 5-pits gaskookplaat, vaatwasser, combi-oven/magnetron en koel-/vriescombinatie, straalt zowel stijl als functionaliteit uit.
Loop je iets verder door, dan tref je aan de rechterzijde de badkamer, voorzien van een dubbele wastafel, ligbad en toilet. Boven de badkamer bevindt zich een praktische bergruimte van circa 5 m². Aan dezelfde zijde bevindt zich ook een bergkast met aansluitingen voor wasmachine en droger, evenals de cv-ketel. De inpandige logeer-/werkkamer ligt naast de badkamer.
Voordat je de master bedroom betreedt, kom je eerst in een prettige werkruimte, waarbij één van de daklichten elektrisch te openen is.
De ruime master bedroom aan de achterzijde wordt afgescheiden met een moderne zwarte stalen pui, waardoor het hele appartement een mooie doorzonindeling heeft. Via openslaande deuren is er toegang tot de ruime patio.
Dit is jouw kans om te genieten van een licht en goed onderhouden appartement, compleet met een heerlijke patio. Gelegen in het bruisende hart van de Staatsliedenbuurt, biedt deze woning alles wat je nodig hebt binnen handbereik. Mis deze kans niet!
Bijzonderheden:
- Woonoppervlakte ca. 85,10m2;
- Patio ca. 12m2;
- Inpandige berging boven badkamer ca. 5m2;
- Energielabel C;
- Houten kozijnen voorzien van dubbele beglazing;
- In de gehele woning ligt een eiken houten vloer;
- C.V.-ketel, type Remeha Avanta, bouwjaar 2011 (jaarlijks onderhouden);
- De actieve VvE bestaat uit 4 appartementen en wordt professioneel beheerd door INXXX Vastgoed;
- De maandelijkse servicekosten bedragen € 183,61;
- Gelegen op voortdurende erfpacht, eigendom gemeente Amsterdam. De erfpachtcanon wordt jaarlijks geïndexeerd en bedraagt voor 2025 € 700,18. De omzetting per 16 januari 2029 naar eeuwigdurende erfpacht heeft plaatsgevonden met een jaarlijkse betaling van de erfpachtcanon.
Nieuwsgierig geworden? Wij maken graag een afspraak met je!
-------------------------------------
Discover this charming ground-floor apartment with a cheerful twist, located in the vibrant heart of the beloved Staatsliedenbuurt. With a generous living area of approximately 85 m², high ceilings of about 3.50 meters, and a delightful patio, this home offers a lively living space that invites relaxation and enjoyment.
Step into the bright, dual-aspect living room with a cozy open kitchen, where social gatherings come to life. A comfortable bedroom, a practical guest room/study, and a refreshing bathroom make this home both functional and stylish. In the lovely patio at the rear, you can enjoy sunny days and balmy summer evenings.
The location is simply perfect. Just a few minutes’ walk brings you to Bakkerij Louf, supermarkets such as Albert Heijn and Dirk, an artisanal wine shop, the local butcher, a dry cleaner, and two home décor stores. Just around the corner is the lively Westergasterrein, boasting a wealth of trendy restaurants, cozy cafés, a cinema, tennis courts, and art galleries. Within no time, you’re in the bustling city center, with the enchanting Jordaan district, the iconic Westerkerk, and a treasure trove of boutiques, eateries, and markets — all just 10 minutes away. In addition, the Museumplein and the idyllic Vondelpark are within easy reach.
Tram and bus stops are within walking distance, while key highways such as the A10 (S103 and A105) are easily accessible.
In short, this home not only offers a fantastic living space but also an unparalleled lifestyle in one of the city’s most desirable neighborhoods.
Layout:
Welcome to this charming residence, where you enter directly into the living room with an open kitchen via a private entrance. The fully equipped kitchen, featuring a 5-burner gas hob, dishwasher, combi oven/microwave, and fridge/freezer combination, exudes both style and functionality.
As you walk a bit further, you'll find the bathroom on the right-hand side, fitted with a double washbasin, bathtub, and toilet. Above the bathroom is a practical storage space of approximately 5 m². On the same side, there is also a storage cupboard housing the washing machine and dryer connections, as well as the central heating boiler. The internal guest room/study is located next to the bathroom.
Before entering the master bedroom, you first pass through a pleasant work area, where one of the skylights can be opened electrically.
The spacious master bedroom at the rear is separated by a modern black steel partition, giving the entire apartment a beautiful through-light effect. French doors provide access to the generous patio.
This is your opportunity to enjoy a bright and well-maintained apartment, complete with a wonderful patio. Located in the vibrant heart of Staatsliedenbuurt, this home offers everything you need within easy reach. Don’t miss this opportunity!
Details:
- Living area approx. 85m2;
- Patio approx. 12m2;
- Indoor storage room above bathroom approx. 5m2;
- Energy label C;
- Wooden window frames with double glazing;
- Throughout the house, there is a Oak wooden floor;
- Central heating boiler, Remeha Avanta, built in 2011 (yearly maintained);
- The active VvE (Homeowners Association) consists of 4 apartments and is professional managed by INXXX Vastgoed;
- The monthly service costs amount to € 183.61;
- Located on continuous leasehold land, owned by the Municipality of Amsterdam. The ground lease is indexed annually and amounts to €700.18 for the year 2025. The conversion to perpetual leasehold took place as of January 16, 2029, with an annual payment of the ground lease canon.
Curious to learn more? We would be happy to schedule an appointment with you!
Bijzonderheden:
De gegevens en maatvoeringen op de plattegronden en in de brochure zijn indicatief. Hoewel de informatie zorgvuldig is samengesteld is het toch niet uitgesloten dat bepaalde informatie na verloop van tijd verouderd of niet meer correct is. Aan de op de plattegronden en in de brochure vermelde informatie kunnen dan ook op geen enkele manier rechten worden ontleend. 27 Huis Makelaars aanvaardt geen enkele aansprakelijkheid voor onjuiste of onvolledige informatie noch voor schade ten gevolge van het bezoek aan onze website of andere websites die door middel van links toegankelijk zijn vanuit de website van 27 Huis Makelaars. Tevens sluit 27 Huis Makelaars aansprakelijkheid uit voor externe partijen.
Het woonoppervlak is opgemeten conform meetinstructies gebruikmakende van de NEN2580. De Meetinstructie is bedoeld om een meer eenduidige manier van meten toe te passen voor het geven van een indicatie van de gebruiksoppervlakte. De Meetinstructie sluit verschillen in meetuitkomsten niet volledig uit, door bijvoorbeeld interpretatieverschillen, afrondingen of beperkingen bij het uitvoeren van de meting. Alle opgegeven maten en oppervlaktes zijn derhalve indicatief.
Aspirant-kopers worden bij deze uitdrukkelijk uitgenodigd om; het oppervlak na te meten en/of zelf te kijken/onderzoeken naar de mogelijkheden om eigen gewenste invulling te geven aan het verkochte. Verkopende partij geeft hierover geen garanties.
---------------------
The data and dimensions on the maps and in the brochure are indicative. Although the information has been carefully composed it is not excluded that some information about time is outdated or no longer correct. The information listed on the maps and in the brochure can therefore in no way be legally binding. 27 House Real Estate accepts no liability for incorrect or incomplete real estate information or for any damages as a result of your visit to our website or other websites that are accessible through links from the website of 27 House Real Estate. 27 House Real Estate accepts no liability for any external parties.
The living surface is measured in accordance with the NEN2580 measurement instructions. The NEN2580 measurement instructions are intended to apply a more consistent and unambiguous way of measuring for giving an indication of the surface of use but does not completely exclude differences in measurement outcomes, for example due to differences in interpretation, rounding or limitations when measuring. All specified sizes and surfaces are therefore indicative.
Prospective buyers are expressly invited to do the following: to measure the surface and/or to look at the possibilities of giving your own desired interpretation to the property dimensions and/or hire your own professional company to take measurements. The selling party can give no guarantees on the measurement report.
Stap binnen in de lichte doorzonwoonkamer met een gezellige open keuken, waar sociale bijeenkomsten tot leven komen. Een comfortabele slaapkamer, een praktische logeer-/werkkamer en een verfrissende badkamer maken dit huis zowel functioneel als stijlvol. In de fijne patio aan de achterzijde kun je genieten van zonnige dagen en zwoele zomeravonden.
De locatie is simpelweg perfect. Op slechts enkele minuten loopafstand vind je onder andere Bakkerij Louf, supermarkten als Albert Heijn en Dirk, een ambachtelijke wijnwinkel, de lokale slager, een stomerij en twee woonwinkels. Om de hoek ligt het levendige Westergasterrein, met een overvloed aan trendy restaurants, gezellige cafés, een bioscoop, tennisbanen en kunstgaleries. Binnen een mum van tijd bevind je je in het bruisende centrum, met de betoverende Jordaan, de iconische Westerkerk en een schat aan boetieks, eetgelegenheden en markten – allemaal op slechts 10 minuten afstand. Ook het Museumplein en het idyllische Vondelpark liggen binnen handbereik.
De tram- en bushaltes zijn op loopafstand te vinden, terwijl belangrijke uitvalswegen zoals de A10 (S103 en A105) eenvoudig bereikbaar zijn.
Kortom, deze woning biedt niet alleen een fantastische leefruimte, maar ook een ongeëvenaarde levensstijl in een van de meest gewilde buurten van de stad.
Indeling:
Welkom in deze charmante woning, waar je via een eigen entree direct binnenkomt in de woonkamer met open keuken. De complete keuken, uitgerust met een 5-pits gaskookplaat, vaatwasser, combi-oven/magnetron en koel-/vriescombinatie, straalt zowel stijl als functionaliteit uit.
Loop je iets verder door, dan tref je aan de rechterzijde de badkamer, voorzien van een dubbele wastafel, ligbad en toilet. Boven de badkamer bevindt zich een praktische bergruimte van circa 5 m². Aan dezelfde zijde bevindt zich ook een bergkast met aansluitingen voor wasmachine en droger, evenals de cv-ketel. De inpandige logeer-/werkkamer ligt naast de badkamer.
Voordat je de master bedroom betreedt, kom je eerst in een prettige werkruimte, waarbij één van de daklichten elektrisch te openen is.
De ruime master bedroom aan de achterzijde wordt afgescheiden met een moderne zwarte stalen pui, waardoor het hele appartement een mooie doorzonindeling heeft. Via openslaande deuren is er toegang tot de ruime patio.
Dit is jouw kans om te genieten van een licht en goed onderhouden appartement, compleet met een heerlijke patio. Gelegen in het bruisende hart van de Staatsliedenbuurt, biedt deze woning alles wat je nodig hebt binnen handbereik. Mis deze kans niet!
Bijzonderheden:
- Woonoppervlakte ca. 85,10m2;
- Patio ca. 12m2;
- Inpandige berging boven badkamer ca. 5m2;
- Energielabel C;
- Houten kozijnen voorzien van dubbele beglazing;
- In de gehele woning ligt een eiken houten vloer;
- C.V.-ketel, type Remeha Avanta, bouwjaar 2011 (jaarlijks onderhouden);
- De actieve VvE bestaat uit 4 appartementen en wordt professioneel beheerd door INXXX Vastgoed;
- De maandelijkse servicekosten bedragen € 183,61;
- Gelegen op voortdurende erfpacht, eigendom gemeente Amsterdam. De erfpachtcanon wordt jaarlijks geïndexeerd en bedraagt voor 2025 € 700,18. De omzetting per 16 januari 2029 naar eeuwigdurende erfpacht heeft plaatsgevonden met een jaarlijkse betaling van de erfpachtcanon.
Nieuwsgierig geworden? Wij maken graag een afspraak met je!
-------------------------------------
Discover this charming ground-floor apartment with a cheerful twist, located in the vibrant heart of the beloved Staatsliedenbuurt. With a generous living area of approximately 85 m², high ceilings of about 3.50 meters, and a delightful patio, this home offers a lively living space that invites relaxation and enjoyment.
Step into the bright, dual-aspect living room with a cozy open kitchen, where social gatherings come to life. A comfortable bedroom, a practical guest room/study, and a refreshing bathroom make this home both functional and stylish. In the lovely patio at the rear, you can enjoy sunny days and balmy summer evenings.
The location is simply perfect. Just a few minutes’ walk brings you to Bakkerij Louf, supermarkets such as Albert Heijn and Dirk, an artisanal wine shop, the local butcher, a dry cleaner, and two home décor stores. Just around the corner is the lively Westergasterrein, boasting a wealth of trendy restaurants, cozy cafés, a cinema, tennis courts, and art galleries. Within no time, you’re in the bustling city center, with the enchanting Jordaan district, the iconic Westerkerk, and a treasure trove of boutiques, eateries, and markets — all just 10 minutes away. In addition, the Museumplein and the idyllic Vondelpark are within easy reach.
Tram and bus stops are within walking distance, while key highways such as the A10 (S103 and A105) are easily accessible.
In short, this home not only offers a fantastic living space but also an unparalleled lifestyle in one of the city’s most desirable neighborhoods.
Layout:
Welcome to this charming residence, where you enter directly into the living room with an open kitchen via a private entrance. The fully equipped kitchen, featuring a 5-burner gas hob, dishwasher, combi oven/microwave, and fridge/freezer combination, exudes both style and functionality.
As you walk a bit further, you'll find the bathroom on the right-hand side, fitted with a double washbasin, bathtub, and toilet. Above the bathroom is a practical storage space of approximately 5 m². On the same side, there is also a storage cupboard housing the washing machine and dryer connections, as well as the central heating boiler. The internal guest room/study is located next to the bathroom.
Before entering the master bedroom, you first pass through a pleasant work area, where one of the skylights can be opened electrically.
The spacious master bedroom at the rear is separated by a modern black steel partition, giving the entire apartment a beautiful through-light effect. French doors provide access to the generous patio.
This is your opportunity to enjoy a bright and well-maintained apartment, complete with a wonderful patio. Located in the vibrant heart of Staatsliedenbuurt, this home offers everything you need within easy reach. Don’t miss this opportunity!
Details:
- Living area approx. 85m2;
- Patio approx. 12m2;
- Indoor storage room above bathroom approx. 5m2;
- Energy label C;
- Wooden window frames with double glazing;
- Throughout the house, there is a Oak wooden floor;
- Central heating boiler, Remeha Avanta, built in 2011 (yearly maintained);
- The active VvE (Homeowners Association) consists of 4 apartments and is professional managed by INXXX Vastgoed;
- The monthly service costs amount to € 183.61;
- Located on continuous leasehold land, owned by the Municipality of Amsterdam. The ground lease is indexed annually and amounts to €700.18 for the year 2025. The conversion to perpetual leasehold took place as of January 16, 2029, with an annual payment of the ground lease canon.
Curious to learn more? We would be happy to schedule an appointment with you!
Bijzonderheden:
De gegevens en maatvoeringen op de plattegronden en in de brochure zijn indicatief. Hoewel de informatie zorgvuldig is samengesteld is het toch niet uitgesloten dat bepaalde informatie na verloop van tijd verouderd of niet meer correct is. Aan de op de plattegronden en in de brochure vermelde informatie kunnen dan ook op geen enkele manier rechten worden ontleend. 27 Huis Makelaars aanvaardt geen enkele aansprakelijkheid voor onjuiste of onvolledige informatie noch voor schade ten gevolge van het bezoek aan onze website of andere websites die door middel van links toegankelijk zijn vanuit de website van 27 Huis Makelaars. Tevens sluit 27 Huis Makelaars aansprakelijkheid uit voor externe partijen.
Het woonoppervlak is opgemeten conform meetinstructies gebruikmakende van de NEN2580. De Meetinstructie is bedoeld om een meer eenduidige manier van meten toe te passen voor het geven van een indicatie van de gebruiksoppervlakte. De Meetinstructie sluit verschillen in meetuitkomsten niet volledig uit, door bijvoorbeeld interpretatieverschillen, afrondingen of beperkingen bij het uitvoeren van de meting. Alle opgegeven maten en oppervlaktes zijn derhalve indicatief.
Aspirant-kopers worden bij deze uitdrukkelijk uitgenodigd om; het oppervlak na te meten en/of zelf te kijken/onderzoeken naar de mogelijkheden om eigen gewenste invulling te geven aan het verkochte. Verkopende partij geeft hierover geen garanties.
---------------------
The data and dimensions on the maps and in the brochure are indicative. Although the information has been carefully composed it is not excluded that some information about time is outdated or no longer correct. The information listed on the maps and in the brochure can therefore in no way be legally binding. 27 House Real Estate accepts no liability for incorrect or incomplete real estate information or for any damages as a result of your visit to our website or other websites that are accessible through links from the website of 27 House Real Estate. 27 House Real Estate accepts no liability for any external parties.
The living surface is measured in accordance with the NEN2580 measurement instructions. The NEN2580 measurement instructions are intended to apply a more consistent and unambiguous way of measuring for giving an indication of the surface of use but does not completely exclude differences in measurement outcomes, for example due to differences in interpretation, rounding or limitations when measuring. All specified sizes and surfaces are therefore indicative.
Prospective buyers are expressly invited to do the following: to measure the surface and/or to look at the possibilities of giving your own desired interpretation to the property dimensions and/or hire your own professional company to take measurements. The selling party can give no guarantees on the measurement report.
Omschrijving
Kenmerken
- Status
- Verkocht
- Oplevering
- In overleg
- Adres
- De Wittenkade 87 H
- Postcode
- 1052 AE
- Plaats
- Amsterdam
Aanvaarding
Bouw
- Soort appartement
- Benedenwoning, Appartement
- Soort bouw
- Bestaande bouw
- Bouwjaar
- 1904
- Onderhoud binnen
- Goed
- Onderhoud buiten
- Goed
Oppervlakten en inhoud
- Woonoppervlakte
- ca. 85m²
- Perceeloppervlakte
- ca. 98m²
- Inhoud
- ca. 390m³
Indeling
- Aantal kamers
- 3
- Aantal slaapkamers
- 2
- Aantal verdiepingen
- 1
Energie
- Energielabel
- C
Buitenruimte
- Ligging
- Aan rustige weg, Aan vaarroute
- Tuin
- Patio/atrium
- Patio/atrium
- Noordwest, 12m², 498×241cm
Locatie
[
{
"address": "De Wittenkade 87 H",
"zipCode": "1052 AE",
"city": "Amsterdam"
}
]
Vergelijkbare woningen
Neem contact op
Benieuwd wat wij voor u kunnen betekenen, of gewoon een vraag? Vul het formulier in en wij nemen zo snel mogelijk contact met u op.