Helping you
Johannes Verhulststraat 47 HS


Omschrijving
NEW FOR RENT
Johannes Verhulststraat 47 Hs
Unfurnished
€ 9.700,- excl.
Available 1st of August 2022 (earlier can be discussed)
LUXURIOUS, 5-6 BEDROOM DESIGNER PROPERTY FOR RENT WITH A LARGE BEAUTIFUL GARDEN AND PERFECTLY LOCATED ON A QUIET STREET IN THE PRESTIGIOUS OLD SOUTH AREA NEAR THE VONDEL PARK AND SHOPPING, RESTAURANTS AND MORE!
Highlights:
- Lovely 3 floor house of approx. 250 m2;
- Large and beautiful designer South facing garden of approx. 75 m2;
- 5-6 Bedrooms;
- 2 Bathrooms (1 with large bathtub and separate shower, 1 with shower);
- High quality built-in appliances in the kitchen;
- Quiet street close to the Vondelpark;
- Double glazing throughout the whole house.
Lay-out:
On the quiet and peaceful Johannes Verhulststraat in the Old South area you find this luxurious 3 floor apartment of approximately 250 m2 with its entrance on the ground floor. Through the hall with wardrobe and toilet you enter the spacious living room filled with bright natural light coming in through the large windows and the glass serre / extension sun room. From there you have access to a beautiful and well-maintained South facing garden of approx. 75 m2.
The kitchen is equipped with high-end appliances including a supersized American fridge specially built-in to the kitchen, freezer, oven, microwave and, of course, your own built-in designer coffee machine!
1st Floor:
One flight of stairs up you will find 4 lovely bedrooms. The main bedroom has built in cupboard space on one side of the room and a balcony facing the garden.
The other bedrooms can be used as bedrooms or studies.
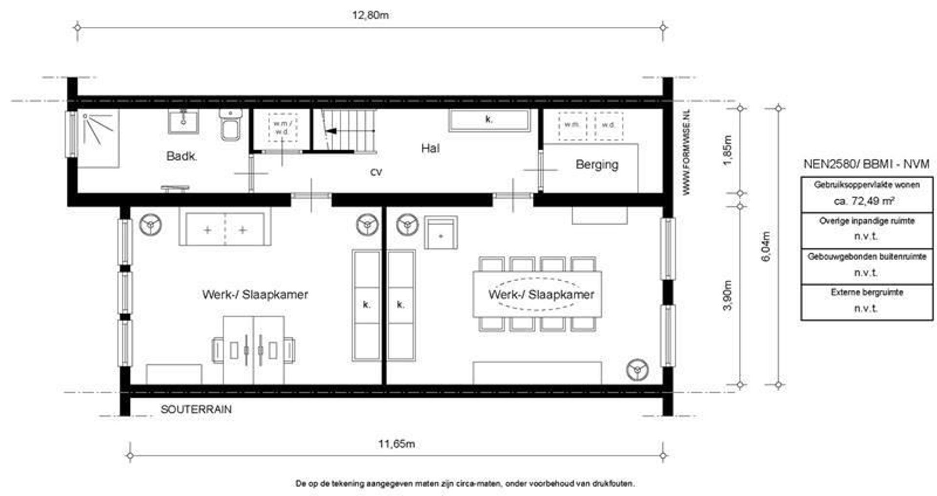
Souterrain:
In the souterrain you find 2 large rooms which can be used as guest rooms/study/kids play ground and/or storage. There is a bathroom with shower, sink and toilet. Under the staircase you find a designed wine fridge. On this same floor there is a large storage room with washer and dryer. Unlike other souterrains, this one is bright, has high ceilings and windows.
PERFECT HOME FOR A FAMILY!
For more information or to schedule a viewing please contact the 27 House Rental Team!
De gegevens en maatvoeringen op de plattegronden en in de brochure zijn indicatief. Hoewel de informatie zorgvuldig is samengesteld is het toch niet uitgesloten dat bepaalde informatie na verloop van tijd verouderd of niet meer correct is. Aan de op de plattegronden en in de brochure vermelde informatie kunnen dan ook op geen enkele manier rechten worden ontleend. 27 Huis Makelaars aanvaardt geen enkele aansprakelijkheid voor onjuiste of onvolledige informatie noch voor schade ten gevolge van het bezoek aan onze website of andere websites die door middel van links toegankelijk zijn vanuit de website van 27 Huis Makelaars. Tevens sluit 27 Huis Makelaars aansprakelijkheid uit voor externe partijen.
The data and dimensions on the maps and in the brochure are indicative. Although the information has been carefully composed it is not excluded that some information about time is outdated or no longer correct. The information listed on the maps and in the brochure can therefore in no way be legally binding. 27 House Real Estate accepts no liability for incorrect or incomplete real estate information or for any damages as a result of your visit to our website or other websites that are accessible through links from the website of 27 House Real Estate. 27 House Real Estate accepts no liability for any external parties.
Omschrijving
Kenmerken
- Prijs
- € 9.700 p.m. excl.
- Status
- Verhuurd
- Adres
- Johannes Verhulststraat 47 HS
- Postcode
- 1071 MS
- Plaats
- Amsterdam
Aanvaarding
Oppervlakten en inhoud
- Woonoppervlakte
- ca. 250m²
- Inhoud
- ca. 680m³
Indeling
- Aantal kamers
- 7
- Aantal slaapkamers
- 6
- Aantal verdiepingen
- 1
Locatie
Neem contact op
Benieuwd wat wij voor u kunnen betekenen, of gewoon een vraag? Vul het formulier in en wij nemen zo snel mogelijk contact met u op.