Helping you
Panamalaan 162


Omschrijving
- English text below -
Licht en modern appartement met royaal dakterras, berging, eigen parkeerplaats, lift en met een energielabel A, gelegen in het populaire Zeeburg.
Ben je op zoek naar een instapklare woning op een toplocatie in Amsterdam met buitenruimte, parkeergelegenheid én extra bergruimte? Dan is dit moderne appartement aan de Panamalaan 162 precies wat je zoekt!
Dit verzorgde appartement, van ca. 125 m2, bevindt zich in een goed onderhouden complex en is van alle gemakken voorzien. De woning beschikt over een ruim dakterras – een zeldzame luxe in Amsterdam – waar je de hele dag kunt genieten van de zon en het prachtige uitzicht. Daarnaast beschikt het appartement over een eigen parkeerplaats in de afgesloten parkeergarage en een privéberging in de onderbouw: ideaal voor fietsen, koffers of seizoensspullen. Ook is er gelegenheid om je fiets te stallen in de parkeergarage.
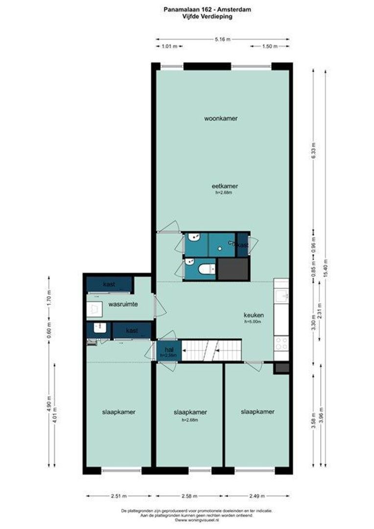
Indeling
Bij binnenkomst op de 4e verdieping kom je in de hal met garderobe, die toegang biedt tot de eerste van de vier slaapkamers. Deze slaapkamer is voorzien van een vaste kledingkast. Tevens bevindt zich op deze verdieping de badkamer met ligbad, douche, wastafelmeubel en toilet.
Op de 5e verdieping vind je de overloop, vanwaar je toegang hebt tot twee andere slaapkamers. Eén van deze slaapkamers heeft een inbouwkast met een geïntegreerde wastafel. Via een trapje in deze kamer bereik je bovendien een extra interne bergruimte.
De vierde slaapkamer – momenteel in gebruik als kantoor – bevindt zich eveneens aan deze zijde van de woning.
De moderne open keuken vormt het hart van deze verdieping en is voorzien van een vaatwasser, oven/magnetroncombinatie, keramische kookplaat en is afgewerkt met een natuurstenen aanrechtblad. De woonkamer is gelegen aan de voorzijde van het complex. Op deze verdieping bevinden zich ook een separaat toilet en een tweede badkamer met douche en wastafel. Tot slot is er een aparte wasruimte met aansluitingen voor wasmachine en droger, evenals een vaste kast.
Vanuit de keuken is er via een vaste trap toegang tot het dakterras. Dit terras is gelegen op het oosten, maar doordat het zich op het dak bevindt, kun je hier de hele dag van de zon genieten.
Bijzonderheden:
- Ruim en licht appartement, ca. 125m²;
- Groot privé dakterras van ca. 21,7m²;
- Eigen parkeerplaats van ca. 12,5m² in de onderbouw;
- Afgesloten berging van ca. 4,2m²;
- Eikenhouten vloer in de gehele woning;
- Lift aanwezig in het gebouw;
- Bouwjaar 2001;
- Energielabel A;
- Verwarming en warm water middels stadsverwarming;
- De actieve en professionele VvE wordt beheerd door NEWOMIJ;
- De maandelijkse servicekosten bedragen € 327,36 (€ 308,11 voor het appartement & € 19,25 voor de parkeerplaats);
- Gelegen op erfpacht (voortdurend), gemeente Amsterdam. De erfpachtcanon is afgekocht tot 28-02-2049;
- Geen zelfbewoningsclausule van toepassing.
Omgeving
Panamalaan 162 ligt in het populaire Zeeburg – een bruisende en veelzijdige wijk in Amsterdam-Oost. Je woont hier op een centrale locatie met de Dappermarkt, het Lloyd Hotel, Oostenburgerpark, Flevopark en de Czaar Peterstraat op loop- of fietsafstand. Er zijn talloze leuke koffiebars, restaurants en speciaalzaken in de buurt. Bovendien ben je met de fiets in ca. 10 minuten in het centrum van Amsterdam.
Ook het openbaar vervoer is uitstekend geregeld: tram 10 en 26 stoppen vlakbij en brengen je snel naar het centrum of station Amsterdam Centraal. Met de auto zit je in no-time op de Ring A10.
Kortom: een ideale woning voor wie comfortabel en stijlvol wil wonen in een levendige stadswijk, met alle voorzieningen binnen handbereik.
Nieuwsgierig geworden? Wij nodigen je graag voor een bezichtiging!
Aanvaarding in overleg, maar kan op korte termijn.
----------------------------------------
Bright and modern 4 bedroom apartment with spacious rooftop terrace, storage, private parking, Lift, an amazing “A” Energy rating, and nicely located in the popular Zeeburg neighborhood.
Are you looking for a move-in-ready home in a prime Amsterdam location with outdoor space, parking, and extra storage? Then this beautiful apartment at Panamalaan 162 is exactly what you're looking for!
This well-maintained apartment, approx. 125m², is part of a well-kept complex and offers all modern comforts. It features a spacious rooftop terrace – a rare luxury in Amsterdam – where you can enjoy the sun and beautiful views all day long. The apartment also includes a private parking space in the secured garage and a private storage unit in the basement, ideal for bikes, luggage, or seasonal items. There is also space to park your bicycle in the garage.
Layout
Upon entering on the 4th floor (via Lift or stairs), you step into the hallway with a wardrobe area that provides access to the first of the four bedrooms. This bedroom includes a built-in wardrobe. This floor also features the bathroom, complete with a bathtub, shower, vanity unit, and toilet.
The 5th floor has a landing that leads to two additional bedrooms. One of these bedrooms has a built-in wardrobe with an integrated sink. A small staircase in this room provides access to an extra internal storage space.
The fourth bedroom, currently used as a home office, is also located on this floor.
The modern open kitchen is the heart of this level and comes equipped with a dishwasher, combination oven/microwave, and a ceramic cooktop, all finished with a natural stone countertop. The living room is located at the front of the complex. Also on this floor: a separate toilet, a second bathroom with shower and sink, and a dedicated laundry room with connections for a washing machine and dryer, plus a built-in cupboard.
From the kitchen, a fixed staircase leads to the rooftop terrace. Although the terrace faces east, its rooftop location ensures sun throughout the day.
Details:
- Spacious and bright apartment, approx. 125m²;
- Large private rooftop terrace of approx. 21.7m²;
- Private parking space of approx. 12.5m² in the basement;
- Secured storage unit of approx. 4.2m²;
- Oak flooring throughout the apartment;
- Elevator present in the building;
- Built in 2001;
- Energy label A;
- Heating and hot water via district heating;
- Active and professionally managed VvE, managed by NEWOMIJ;
- Monthly service charges: €327.36 (€308.11 for the apartment & €19.25 for the parking space);
- Leasehold land (continuous), Municipality of Amsterdam. Ground rent paid off until 28-02-2049;
- No owner-occupancy clause applies.
Surroundings
Panamalaan 162 is located in the popular Zeeburg district – a vibrant and diverse neighborhood in Amsterdam East. You’ll live in a central location with the Dappermarkt, Lloyd Hotel, Oostenburgerpark, Flevopark, and the Czaar Peterstraat within walking or cycling distance. The area offers countless charming cafés, restaurants, and specialty shops. Plus, the city center is just a 10-minute bike ride away.
Public transport is excellent: tram lines 10 and 26 stop nearby and take you quickly to the city center or Amsterdam Central Station. By car, you're on the A10 ring road in no time.
In short: an ideal home for those looking to live comfortably and stylishly in a lively urban neighborhood with all amenities close at hand.
Curious to see more? We’d be delighted to schedule a private viewing with you!
Acceptance in consultation, but can be arranged quickly.
Bijzonderheden:
De gegevens en maatvoeringen op de plattegronden en in de brochure zijn indicatief. Hoewel de informatie zorgvuldig is samengesteld is het toch niet uitgesloten dat bepaalde informatie na verloop van tijd verouderd of niet meer correct is. Aan de op de plattegronden en in de brochure vermelde informatie kunnen dan ook op geen enkele manier rechten worden ontleend. 27 Huis Makelaars aanvaardt geen enkele aansprakelijkheid voor onjuiste of onvolledige informatie noch voor schade ten gevolge van het bezoek aan onze website of andere websites die door middel van links toegankelijk zijn vanuit de website van 27 Huis Makelaars. Tevens sluit 27 Huis Makelaars aansprakelijkheid uit voor externe partijen.
Het woonoppervlak is opgemeten conform meetinstructies gebruikmakende van de NEN2580. De Meetinstructie is bedoeld om een meer eenduidige manier van meten toe te passen voor het geven van een indicatie van de gebruiksoppervlakte. De Meetinstructie sluit verschillen in meetuitkomsten niet volledig uit, door bijvoorbeeld interpretatieverschillen, afrondingen of beperkingen bij het uitvoeren van de meting. Alle opgegeven maten en oppervlaktes zijn derhalve indicatief.
Aspirant-kopers worden bij deze uitdrukkelijk uitgenodigd om; het oppervlak na te meten en/of zelf te kijken/onderzoeken naar de mogelijkheden om eigen gewenste invulling te geven aan het verkochte. Verkopende partij geeft hierover geen garanties.
-------------------------------------
The data and dimensions on the maps and in the brochure are indicative. Although the information has been carefully composed it is not excluded that some information about time is outdated or no longer correct. The information listed on the maps and in the brochure can therefore in no way be legally binding. 27 House Real Estate accepts no liability for incorrect or incomplete real estate information or for any damages as a result of your visit to our website or other websites that are accessible through links from the website of 27 House Real Estate. 27 House Real Estate accepts no liability for any external parties.
The living surface is measured in accordance with the NEN2580 measurement instructions. The NEN2580 measurement instructions are intended to apply a more consistent and unambiguous way of measuring for giving an indication of the surface of use but does not completely exclude differences in measurement outcomes, for example due to differences in interpretation, rounding or limitations when measuring. All specified sizes and surfaces are therefore indicative.
Prospective buyers are expressly invited to do the following: to measure the surface and/or to look at the possibilities of giving your own desired interpretation to the property dimensions and/or hire your own professional company to take measurements. The selling party can give no guarantees on the measurement report.
Licht en modern appartement met royaal dakterras, berging, eigen parkeerplaats, lift en met een energielabel A, gelegen in het populaire Zeeburg.
Ben je op zoek naar een instapklare woning op een toplocatie in Amsterdam met buitenruimte, parkeergelegenheid én extra bergruimte? Dan is dit moderne appartement aan de Panamalaan 162 precies wat je zoekt!
Dit verzorgde appartement, van ca. 125 m2, bevindt zich in een goed onderhouden complex en is van alle gemakken voorzien. De woning beschikt over een ruim dakterras – een zeldzame luxe in Amsterdam – waar je de hele dag kunt genieten van de zon en het prachtige uitzicht. Daarnaast beschikt het appartement over een eigen parkeerplaats in de afgesloten parkeergarage en een privéberging in de onderbouw: ideaal voor fietsen, koffers of seizoensspullen. Ook is er gelegenheid om je fiets te stallen in de parkeergarage.
Indeling
Bij binnenkomst op de 4e verdieping kom je in de hal met garderobe, die toegang biedt tot de eerste van de vier slaapkamers. Deze slaapkamer is voorzien van een vaste kledingkast. Tevens bevindt zich op deze verdieping de badkamer met ligbad, douche, wastafelmeubel en toilet.
Op de 5e verdieping vind je de overloop, vanwaar je toegang hebt tot twee andere slaapkamers. Eén van deze slaapkamers heeft een inbouwkast met een geïntegreerde wastafel. Via een trapje in deze kamer bereik je bovendien een extra interne bergruimte.
De vierde slaapkamer – momenteel in gebruik als kantoor – bevindt zich eveneens aan deze zijde van de woning.
De moderne open keuken vormt het hart van deze verdieping en is voorzien van een vaatwasser, oven/magnetroncombinatie, keramische kookplaat en is afgewerkt met een natuurstenen aanrechtblad. De woonkamer is gelegen aan de voorzijde van het complex. Op deze verdieping bevinden zich ook een separaat toilet en een tweede badkamer met douche en wastafel. Tot slot is er een aparte wasruimte met aansluitingen voor wasmachine en droger, evenals een vaste kast.
Vanuit de keuken is er via een vaste trap toegang tot het dakterras. Dit terras is gelegen op het oosten, maar doordat het zich op het dak bevindt, kun je hier de hele dag van de zon genieten.
Bijzonderheden:
- Ruim en licht appartement, ca. 125m²;
- Groot privé dakterras van ca. 21,7m²;
- Eigen parkeerplaats van ca. 12,5m² in de onderbouw;
- Afgesloten berging van ca. 4,2m²;
- Eikenhouten vloer in de gehele woning;
- Lift aanwezig in het gebouw;
- Bouwjaar 2001;
- Energielabel A;
- Verwarming en warm water middels stadsverwarming;
- De actieve en professionele VvE wordt beheerd door NEWOMIJ;
- De maandelijkse servicekosten bedragen € 327,36 (€ 308,11 voor het appartement & € 19,25 voor de parkeerplaats);
- Gelegen op erfpacht (voortdurend), gemeente Amsterdam. De erfpachtcanon is afgekocht tot 28-02-2049;
- Geen zelfbewoningsclausule van toepassing.
Omgeving
Panamalaan 162 ligt in het populaire Zeeburg – een bruisende en veelzijdige wijk in Amsterdam-Oost. Je woont hier op een centrale locatie met de Dappermarkt, het Lloyd Hotel, Oostenburgerpark, Flevopark en de Czaar Peterstraat op loop- of fietsafstand. Er zijn talloze leuke koffiebars, restaurants en speciaalzaken in de buurt. Bovendien ben je met de fiets in ca. 10 minuten in het centrum van Amsterdam.
Ook het openbaar vervoer is uitstekend geregeld: tram 10 en 26 stoppen vlakbij en brengen je snel naar het centrum of station Amsterdam Centraal. Met de auto zit je in no-time op de Ring A10.
Kortom: een ideale woning voor wie comfortabel en stijlvol wil wonen in een levendige stadswijk, met alle voorzieningen binnen handbereik.
Nieuwsgierig geworden? Wij nodigen je graag voor een bezichtiging!
Aanvaarding in overleg, maar kan op korte termijn.
----------------------------------------
Bright and modern 4 bedroom apartment with spacious rooftop terrace, storage, private parking, Lift, an amazing “A” Energy rating, and nicely located in the popular Zeeburg neighborhood.
Are you looking for a move-in-ready home in a prime Amsterdam location with outdoor space, parking, and extra storage? Then this beautiful apartment at Panamalaan 162 is exactly what you're looking for!
This well-maintained apartment, approx. 125m², is part of a well-kept complex and offers all modern comforts. It features a spacious rooftop terrace – a rare luxury in Amsterdam – where you can enjoy the sun and beautiful views all day long. The apartment also includes a private parking space in the secured garage and a private storage unit in the basement, ideal for bikes, luggage, or seasonal items. There is also space to park your bicycle in the garage.
Layout
Upon entering on the 4th floor (via Lift or stairs), you step into the hallway with a wardrobe area that provides access to the first of the four bedrooms. This bedroom includes a built-in wardrobe. This floor also features the bathroom, complete with a bathtub, shower, vanity unit, and toilet.
The 5th floor has a landing that leads to two additional bedrooms. One of these bedrooms has a built-in wardrobe with an integrated sink. A small staircase in this room provides access to an extra internal storage space.
The fourth bedroom, currently used as a home office, is also located on this floor.
The modern open kitchen is the heart of this level and comes equipped with a dishwasher, combination oven/microwave, and a ceramic cooktop, all finished with a natural stone countertop. The living room is located at the front of the complex. Also on this floor: a separate toilet, a second bathroom with shower and sink, and a dedicated laundry room with connections for a washing machine and dryer, plus a built-in cupboard.
From the kitchen, a fixed staircase leads to the rooftop terrace. Although the terrace faces east, its rooftop location ensures sun throughout the day.
Details:
- Spacious and bright apartment, approx. 125m²;
- Large private rooftop terrace of approx. 21.7m²;
- Private parking space of approx. 12.5m² in the basement;
- Secured storage unit of approx. 4.2m²;
- Oak flooring throughout the apartment;
- Elevator present in the building;
- Built in 2001;
- Energy label A;
- Heating and hot water via district heating;
- Active and professionally managed VvE, managed by NEWOMIJ;
- Monthly service charges: €327.36 (€308.11 for the apartment & €19.25 for the parking space);
- Leasehold land (continuous), Municipality of Amsterdam. Ground rent paid off until 28-02-2049;
- No owner-occupancy clause applies.
Surroundings
Panamalaan 162 is located in the popular Zeeburg district – a vibrant and diverse neighborhood in Amsterdam East. You’ll live in a central location with the Dappermarkt, Lloyd Hotel, Oostenburgerpark, Flevopark, and the Czaar Peterstraat within walking or cycling distance. The area offers countless charming cafés, restaurants, and specialty shops. Plus, the city center is just a 10-minute bike ride away.
Public transport is excellent: tram lines 10 and 26 stop nearby and take you quickly to the city center or Amsterdam Central Station. By car, you're on the A10 ring road in no time.
In short: an ideal home for those looking to live comfortably and stylishly in a lively urban neighborhood with all amenities close at hand.
Curious to see more? We’d be delighted to schedule a private viewing with you!
Acceptance in consultation, but can be arranged quickly.
Bijzonderheden:
De gegevens en maatvoeringen op de plattegronden en in de brochure zijn indicatief. Hoewel de informatie zorgvuldig is samengesteld is het toch niet uitgesloten dat bepaalde informatie na verloop van tijd verouderd of niet meer correct is. Aan de op de plattegronden en in de brochure vermelde informatie kunnen dan ook op geen enkele manier rechten worden ontleend. 27 Huis Makelaars aanvaardt geen enkele aansprakelijkheid voor onjuiste of onvolledige informatie noch voor schade ten gevolge van het bezoek aan onze website of andere websites die door middel van links toegankelijk zijn vanuit de website van 27 Huis Makelaars. Tevens sluit 27 Huis Makelaars aansprakelijkheid uit voor externe partijen.
Het woonoppervlak is opgemeten conform meetinstructies gebruikmakende van de NEN2580. De Meetinstructie is bedoeld om een meer eenduidige manier van meten toe te passen voor het geven van een indicatie van de gebruiksoppervlakte. De Meetinstructie sluit verschillen in meetuitkomsten niet volledig uit, door bijvoorbeeld interpretatieverschillen, afrondingen of beperkingen bij het uitvoeren van de meting. Alle opgegeven maten en oppervlaktes zijn derhalve indicatief.
Aspirant-kopers worden bij deze uitdrukkelijk uitgenodigd om; het oppervlak na te meten en/of zelf te kijken/onderzoeken naar de mogelijkheden om eigen gewenste invulling te geven aan het verkochte. Verkopende partij geeft hierover geen garanties.
-------------------------------------
The data and dimensions on the maps and in the brochure are indicative. Although the information has been carefully composed it is not excluded that some information about time is outdated or no longer correct. The information listed on the maps and in the brochure can therefore in no way be legally binding. 27 House Real Estate accepts no liability for incorrect or incomplete real estate information or for any damages as a result of your visit to our website or other websites that are accessible through links from the website of 27 House Real Estate. 27 House Real Estate accepts no liability for any external parties.
The living surface is measured in accordance with the NEN2580 measurement instructions. The NEN2580 measurement instructions are intended to apply a more consistent and unambiguous way of measuring for giving an indication of the surface of use but does not completely exclude differences in measurement outcomes, for example due to differences in interpretation, rounding or limitations when measuring. All specified sizes and surfaces are therefore indicative.
Prospective buyers are expressly invited to do the following: to measure the surface and/or to look at the possibilities of giving your own desired interpretation to the property dimensions and/or hire your own professional company to take measurements. The selling party can give no guarantees on the measurement report.
Omschrijving
Kenmerken
- Status
- Verkocht
- Oplevering
- In overleg
- Adres
- Panamalaan 162
- Postcode
- 1019 AZ
- Plaats
- Amsterdam
Aanvaarding
Bouw
- Soort appartement
- Bovenwoning, Appartement
- Soort bouw
- Bestaande bouw
- Bouwjaar
- 2001
- Onderhoud binnen
- Goed
- Onderhoud buiten
- Goed
Oppervlakten en inhoud
- Woonoppervlakte
- ca. 125m²
- Perceeloppervlakte
- ca. 149m²
- Inhoud
- ca. 436m³
Indeling
- Aantal kamers
- 5
- Aantal slaapkamers
- 4
- Aantal verdiepingen
- 3
Energie
- Energielabel
- A
Buitenruimte
- Ligging
- In woonwijk
Garage
- Soort garage
- Parkeerplaats
- Afmetingen
- 13m²
Locatie
[
{
"address": "Panamalaan 162",
"zipCode": "1019 AZ",
"city": "Amsterdam"
}
]
Vergelijkbare woningen
Neem contact op
Benieuwd wat wij voor u kunnen betekenen, of gewoon een vraag? Vul het formulier in en wij nemen zo snel mogelijk contact met u op.